Plan Design Portfolio

Plan JF-2883


Plan JF-2883 Elevation
Plan JF-2883 First Floor

First Floor

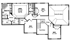
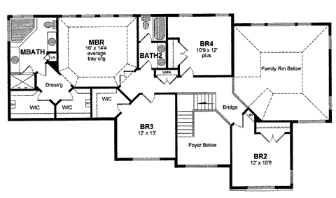
Plan JF-2883 Second Floor

Second Floor


Plan JF-2883
First Floor 1571 Sq. Ft.
Second Floor 1312 Sq. Ft.
Total 2883 Sq. Ft.
   
Overall Width 80’-0”
Overall Depth 42’-0”
   
1st Floor Ceiling Height 9’-0”
2nd Floor Ceiling Height 8’-0”
   
This House Features:
Open Flow Floor Plan With Volume Great Room
Expansive Covered Front Porch
Trey Ceiling Master Suite
Oversized Shower, His/Her Master Walk Ins
3-Car Garage Plus Storage Area

Back to Plan Design Portfolio Index