Plan Design Portfolio

Plan BH-3744


Plan BH-3744 Elevation
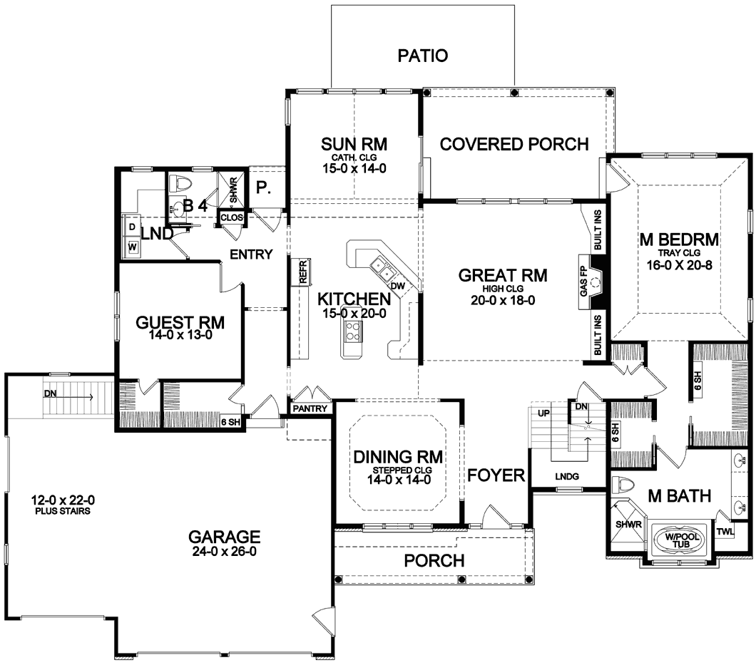
Plan BH-3744 First Floor

First Floor

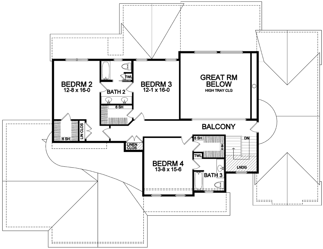
Plan BH-3744 Second Floor

Second Floor


Plan BH-3744
First Floor 2570 Sq. Ft.
Second Floor 1174 Sq. Ft.
Total 3744 Sq. Ft.
   
Overall Width 81’-8”
Overall Depth 62’-0”
   
1st Floor Ceiling Height 9’-0”
2nd Floor Ceiling Height 8’-0”
   
This House Features:
First Floor Master Bed, 4 Bedrooms Upstairs
4 Full Baths
Great Cape Cod / Carriage House Style
Private First Floor Guest Suite Plus First Floor Master
Open Sun / Morning Room
Covered Rear Porch
Jack/Jill Baths Plus Private Bedroom Bath

Back to Plan Design Portfolio Index