Plan Design Portfolio

Plan BH-14


Plan BH-14 Elevation
Plan BH-14 First Floor

First Floor

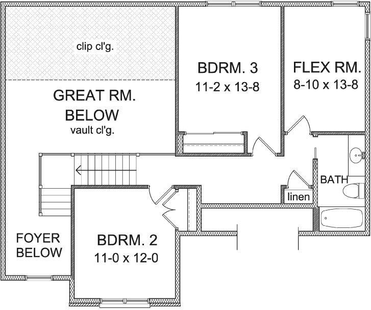
Plan BH-14 Second Floor

Second Floor


Plan BH-14
First Floor 1598 Sq. Ft.
Second Floor 707 Sq. Ft.
Total 2305 Sq. Ft.
   
Overall Width 66’-8”
Overall Depth 52’-10”
   
1st Floor Ceiling Height 9’-0”
2nd Floor Ceiling Height 8’-0”
   
This House Features:
3-4 Bedrooms
2 Full Baths / 1 Half Bath
Spacious first floor master suite with trey ceiling
Volume ceilings in great room, foyer, and master bedroom suite
Huge Gourmet Kitchen W/Peninsula
Walk In Closet
3-Car Garage

Back to Plan Design Portfolio Index