Plan Design Portfolio

Plan BH-12


Plan BH-12 Elevation
Plan BH-12 First Floor

First Floor

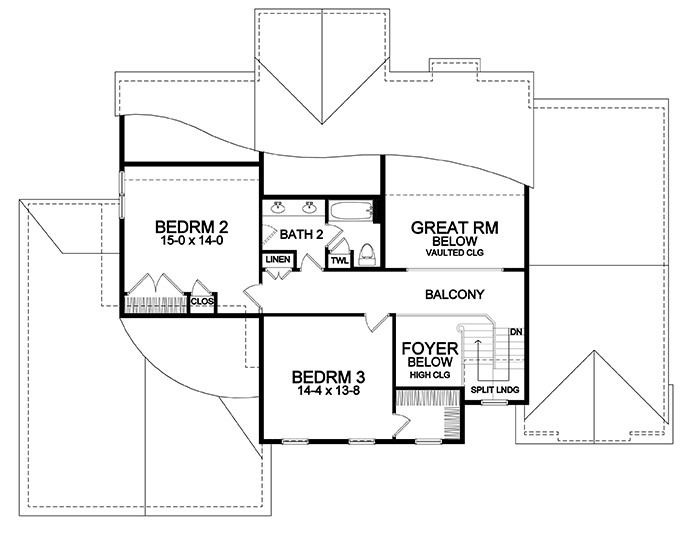
Plan BH-12 Second Floor

Second Floor


Plan BH-12
First Floor 2206 Sq. Ft.
Second Floor 814 Sq. Ft.
Total 3020 Sq. Ft.
   
Overall Width 79’-8”
Overall Depth 48’-4”
   
1st Floor Ceiling Height 9’-0”
2nd Floor Ceiling Height 8’-0”
   
This House Features:
First Floor Master Bed, 2 Bedrooms Upstairs
2 Full Baths / 1 Half Bath
Open Foyer / Open Great Room
Two Sided Balcony Overlook
Huge Dinette, Open to Great Room
Study / 2nd First Floor Bedroom
His/Hers Walk In Closets

Back to Plan Design Portfolio Index