Plan Design Portfolio

Plan AP-595


Plan AP-595 Elevation
Plan AP-595 First Floor

First Floor

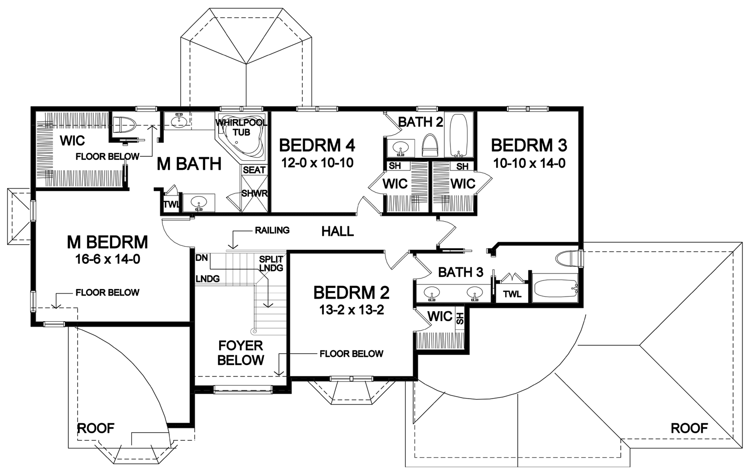
Plan AP-595 Second Floor

Second Floor


Plan AP-595
First Floor 1638 Sq. Ft.
Second Floor 1358 Sq. Ft.
Total 2996 Sq. Ft.
   
Overall Width 75’-0”
Overall Depth 44’-10”
   
1st Floor Ceiling Height 9’-0”
2nd Floor Ceiling Height 8’-0”
   
This House Features:
4 Bedrooms / Den
3 Full Baths / 1 Half Bath
Volume Ceilings in Foyer, Den
Gas Fireplace in Great Rm
1st Floor Den
Work Island in Kitchen
Whirlpool Tub in M Bath
Split Bath 2

Back to Plan Design Portfolio Index