Plan Design Portfolio

Plan AP-550


Plan AP-550 Elevation
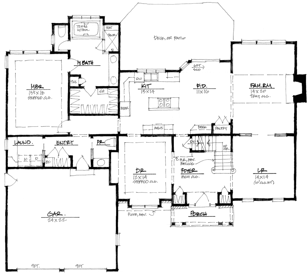
Plan AP-550 First Floor

First Floor

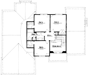
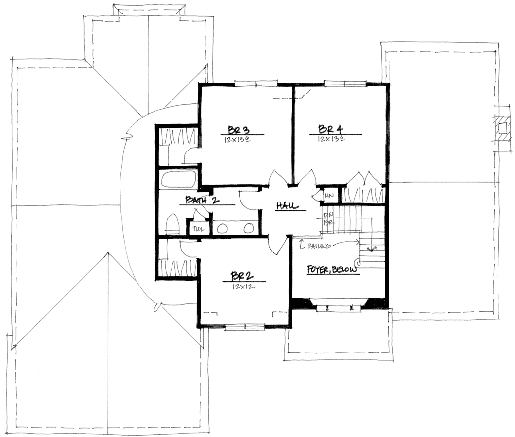
Plan AP-550 Second Floor

Second Floor


Plan AP-550
First Floor 1912 Sq. Ft.
Second Floor 715 Sq. Ft.
Total 2627 Sq. Ft.
   
Overall Width 62’-0”
Overall Depth 54’-6”
   
1st Floor Ceiling Height 9’-0”
2nd Floor Ceiling Height 8’-0”
   
This House Features:
Cape Cod Styling
First Floor Master Bed, 3 More Bedrooms Upstairs
2 Full Baths / 1 Half Bath
Parlor/Living Room or Private Study
Two Story Foyer
Cathedral Great Room and Study

Back to Plan Design Portfolio Index