Plan Design Portfolio

Plan AP-504


Plan AP-504 Elevation
Plan AP-504 First Floor

First Floor

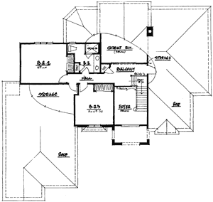
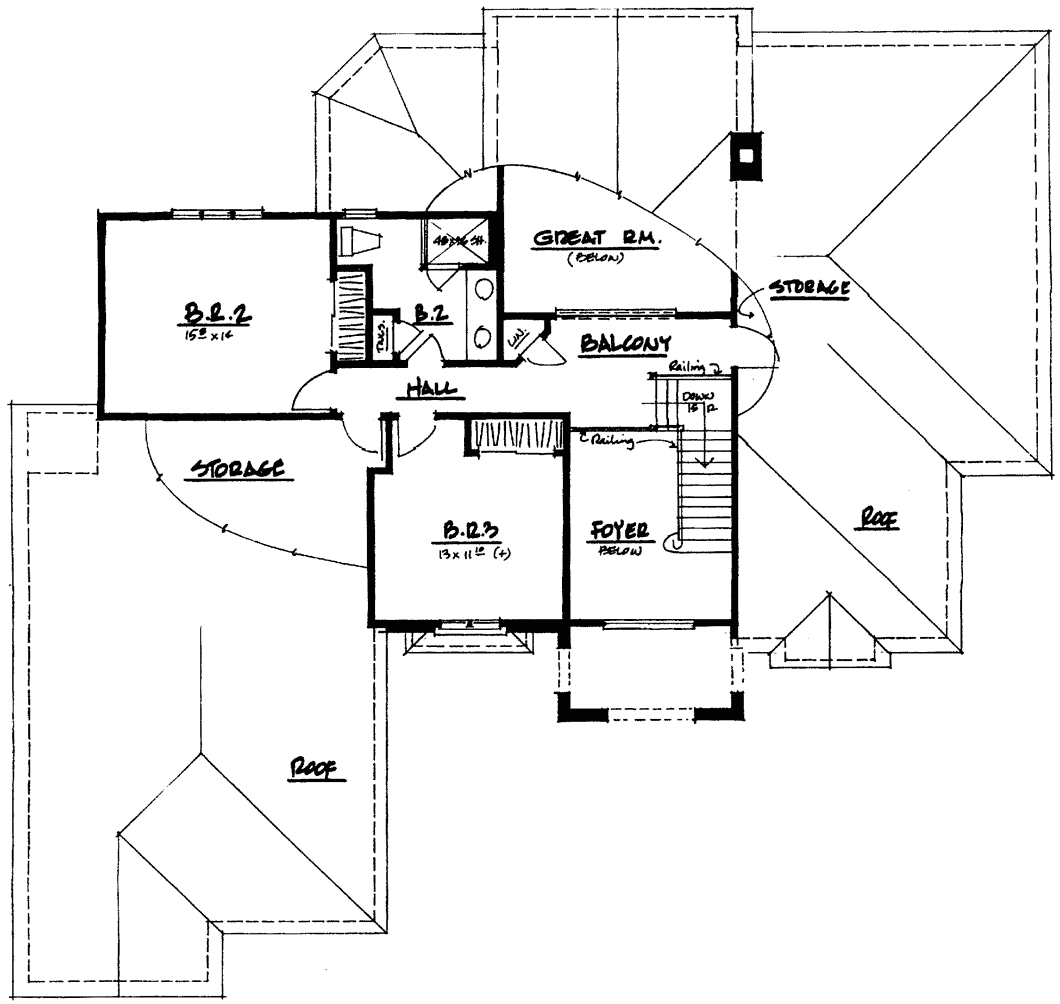
Plan AP-504 Second Floor

Second Floor


Plan AP-504
First Floor 1974 Sq. Ft.
Second Floor 681 Sq. Ft.
Total 2655 Sq. Ft.
   
Overall Width 67’-0”
Overall Depth 65’-0”
   
1st Floor Ceiling Height 9’-0”
2nd Floor Ceiling Height 8’-0”
   
This House Features:
3 Bedrooms
2 Full Baths / 1 Half Bath
Volume Ceilings in Foyer, Great Room
Fireplace in Great Room
First Floor Master Bedroom
Whirlpool Tub in Compartmentalized M Bath
Second Set of Stairs in Garage

Back to Plan Design Portfolio Index