Plan Design Portfolio

Plan AP-459


Plan AP-459 Elevation
Plan AP-459 First Floor

First Floor

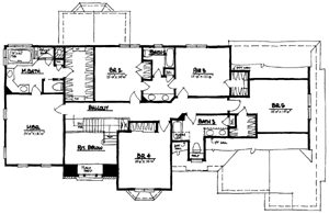
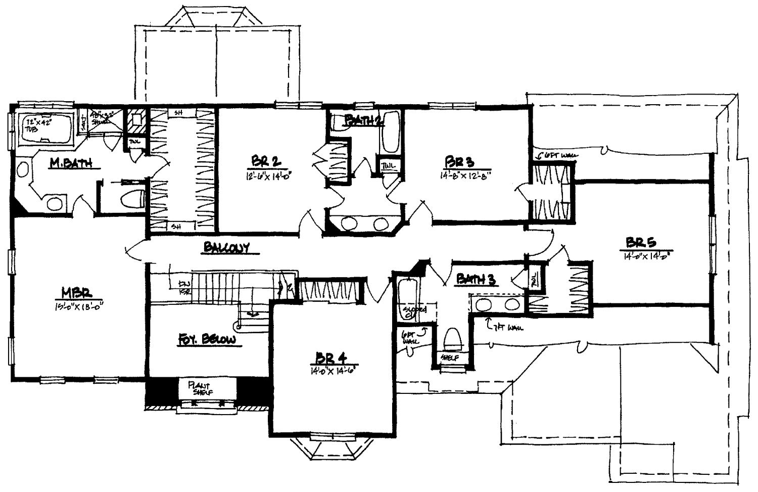
Plan AP-459 Second Floor

Second Floor


Plan AP-459
First Floor 1744 Sq. Ft.
Second Floor 1536 Sq. Ft.
Total 3280 Sq. Ft.
   
Overall Width 80’-0”
Overall Depth 48’-4”
   
1st Floor Ceiling Height 9’-0”
2nd Floor Ceiling Height 8’-0”
   
This House Features:
5 Bedrooms
3 Full Baths / 1 Half Bath
Volume Ceilings in Foyer, Dining Rm
Fireplace in Family Room
Work Island in Kitchen
Screened Porch
Second Set of Stairs in Garage
Whirlpool Tub in Compartmentalized M Bath
Split Bath 2

Back to Plan Design Portfolio Index