Plan Design Portfolio

Plan AP-442


Plan AP-442 Elevation
Plan AP-442 First Floor

First Floor

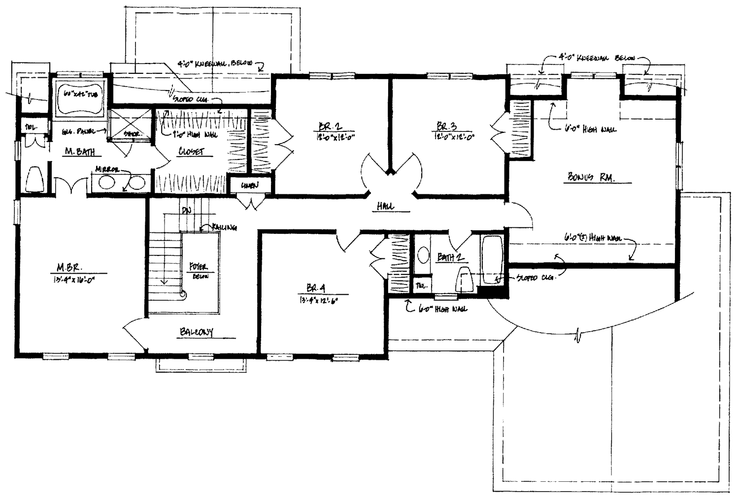
Plan AP-442 Second Floor

Second Floor


Plan AP-442
First Floor 1459 Sq. Ft.
Second Floor 1215 Sq. Ft.
Total 2674 Sq. Ft.
   
Overall Width 72’-0”
Overall Depth 46’-0”
   
1st Floor Ceiling Height 9’-0”
2nd Floor Ceiling Height 8’-0”
   
This House Features:
4 Bedrooms / Den
2 Full Baths / 1 Half Bath
Volume Foyer
Gas Fireplace in Family Rm
Work Island in Kitchen
Screened Porch
Whirlpool Tub in Compartmentalized M Bath
3-Car side garage

Back to Plan Design Portfolio Index